Projet ROY
Construction neuve d'un logement individuel
Logement individuel, 5 chambres, 1 bureau, 1 pièce de vie, 1 piscine
Catégorie : Logement
Localisation : Blanquefort, 33
Budget : 550 000 € HT
Surface : 350 m²
Mission : Conception + Permis de construire
État : Chantier en cours






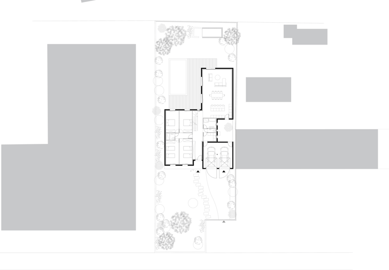
Plan masse
RDC
R+1


Perspective depuis le jardin
Ferme Anthonioz
Transformation d'une ferme bretonne
Logement individuel, studio indépendant, atelier, potager, serres
Catégorie : Logement
Localisation : Cledun-Cap Sizun, 29
Budget : 550 000 € HT
Surface : 520 m²
Mission : Conception + Permis de construire
État : Avant projet sommaire
Photos des bâtiments existants










La Bastidelle
Transformation d'un bâtiment agricole en tiers-lieu artistique
Salle de spectacle, restaurant, boutique, théâtre de verdure et chambres d'hôtes.
Catégorie : Établissement recevant du public, 4ème catégorie
Localisation : Léojac, Tarn-et-Garonne
Budget : 650 000 € HT
Surface : 480 m²
Mission : Conception + Permis de construire
État : Permis de construire accordé


Existant
Projet


Photos du bâtiment existant
1 Salle de spectacle
2 Restaurant
3 Cuisine
4 Laverie / Chaufferie
5 Studio a
6 Studio b
7 Espace commun
8 Entrée résidents
9 Régie / stockage
10 Loges artistes


Villa à Saint Leu
Construction d'une maison individuelle
Maison avec piscine, grande terrasse, une pièce de vie salon/cuisine/salle à manger, 5 chambres
Catégorie : Habitation
Localisation : Saint Leu, La Réunion
Budget : 450 000 € HT
Surface : 174 m²
Mission : Conception + Permis de construire
État : Permis de construire en cours d'instruction




Perspective 3d
Plan de situation






Plan de masse
Plan de rez-de-chaussée
Plan de rez-de-jardin
Coupe perspective








Existant
Projet










Visualisations 3D
Extension d'une maison individuelle de type Chalet Rousseau
Salon TV, bureau, chambre parentale, salle de hammam.
Catégorie : Habitation
Localisation : Lège-Cap-Ferret
Budget : 320 000 € HT
Surface : 80 m²
Mission : Conception + Permis de construire + Suivi de chantier
État : Permis de construire accordé, début de chantier prévu en février 2026
Rousseau
Photos de l'existant


Morava




Photos de l'existant

Transformation d'une maison traditionnelle Landaise en Arcachonnaise typique du Bassin.
Extension + rénovation complète.
Catégorie : Habitation
Localisation : Lège-Cap-Ferret
Budget : 250 000 € HT
Surface : 72 m²
Mission : Conception + Déclaration Préalable
État : Déclaration préalable accordée
Maison individuelle Chemin Diale


Construction d'une maison individuelle neuve.
Conservation de la flore endémique existante, matériaux naturels : bois et pierre volcanique.
Catégorie : Habitation
Localisation : Saint-Leu, Ile de La Réunion
Budget : 450 000 € HT
Surface : 180 m²
Mission : Conception + Permis de construire
État : Permis de construire en cours d'instruction


La Fosse
















Transformation d'une grange en logement + création piscine.
Conservation de la flore endémique existante, matériaux naturels : bois et pierre volcanique.
Catégorie : Habitation
Localisation : La Fosse, Perche
Budget : 315 000 € HT
Surface : 140 m²
Mission : Conception + Déclaration préalable + suivi de chantier
État : Chantier livré en 2023.
Un peu d'ombre






Rénovation énergétique + création d'une terrasse couverte
Isolation par l'extérieur, remplacement des menuiseries et avant-toit en charpente bois.
Catégorie : Habitation
Localisation : Floirac
Budget : 25 000 € HT
Surface : 25 m²
Mission : Conception + Déclaration préalable + suivi de chantier
État : Chantier livré en 2023.
Artisans : Coskun maçonnerie + Atelier Muda
Village Bacalan












Rénovation d'une salle d'eau attenante à une suite parentale
Repenser l'accès, inclusion d'une bibliothèque sur mesure.
Catégorie : Habitation
Localisation : Bordeaux
Budget : 8 000 € HT
Surface : 3 m²
Mission : Conception + suivi de chantier
État : Chantier livré en 2024.
Artisans : Ébène Rénovation + Scohy plomberie
